【建売】七隈6丁目1号地
高気密高断熱仕様の住宅!!
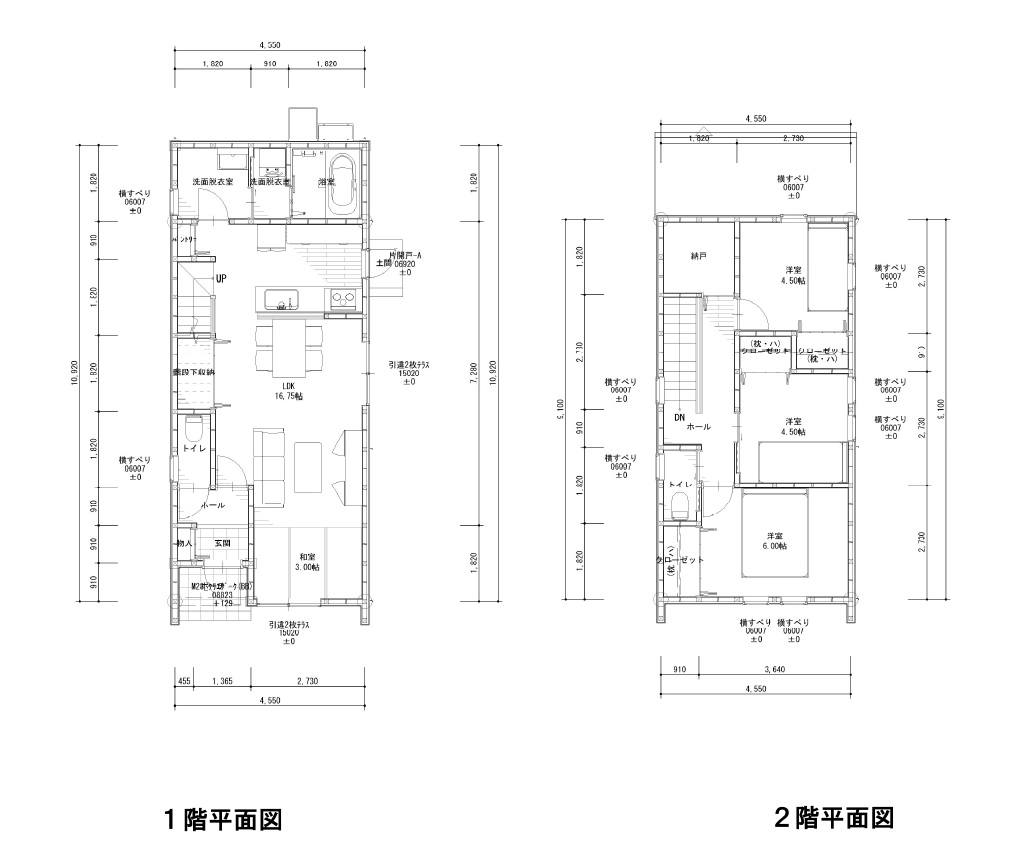
4LDKの南向き住宅になります!
日当たり良好の明るいリビングです♪
4LDKの南向き住宅になります!
日当たり良好の明るいリビングです♪
【建売】七隈6丁目1号地
建売情報詳細
| 建売名称(号地) | 【建売】七隈6丁目1号地 | 間取 | |
|---|---|---|---|
| 敷地面積 | 117.57㎡㎡ | 建物面積 | 89.42㎡㎡ |
| 販売価格(税込) | 4,980万円 | 建設工事完成予定 | |
| 入居予定 | 建築確認番号 | ||
| 所在地 | 福岡市城南区七隈6丁目3-8付近 | 施工 | 鬼丸ホーム㈱ |
| 取引形態 | 売主 | 交通 | 地下鉄七隈線 七隈駅 徒歩7分 |
| 学校区 | 七隈小学校・梅林中学校 | 地目 | 宅地 |
| 建ぺい率・容積率 | 建ぺい率60% 容積率200% | 設備等の概要 | 上水道 電気 側溝 |
| 備考 | 口径別納付金が別途かかかる場合があります | ||



